Social Architecture

Collective Housing

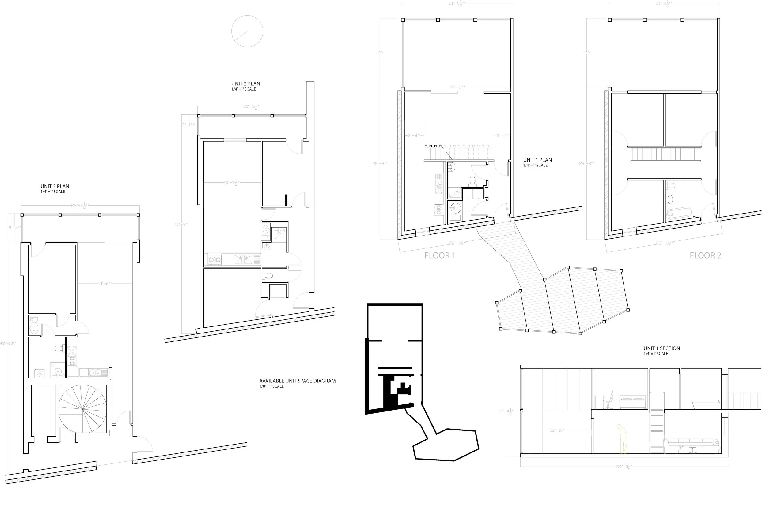
Character Micro-Dwelling

Precedent Case Study

Neighborhood Enclosure

Previous
Previous

Transect Urbanism

Next
Next

Case Modeling